Objekt drucken Seite ausdrucken




Ihr Ansprechpartner: Herr Johannes Telefon: 0351 / 31 44 17 0 oder 0174 / 304 5000
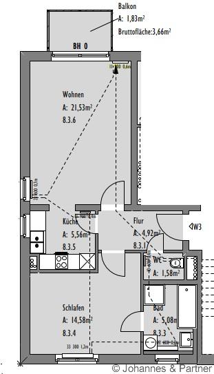
 Mietwohnung: 01099 Dresden - Neustadt , Böhmische Straße 8 WE 13
Objekt-ID: 6651

Beschreibung:

Schöne 2-Zimmer-Wohnung im Neubau mit

* Lift
* Wohnzimmer mit Balkon zur Hofseite
* Bad mit Fenster, Badewanne, Dusche und WM-Anschluss
* PVC-Boden (evtl. neu, je nach Zustand)
* Kellerabteil
* Anmietung eines TG-Stellplatzes ist im Nachbarhaus für ca. 65 € möglich

Angaben aus dem Energieausweis:

Baujahr: 1996                         Objektzustand: gepflegt
Heizungsart: Zentralheizung     Befeuerungsart: Fernwärme
Energiebedarf: 92,4 kWh (m²*a)   Typ: Verbrauchsausweis
Energieeffizienzklasse: C




Grundriss


Hausansicht


Hausansicht


Exposé ist nur zur Information für Interessenten. Eine Weiterverwendung durch Dritte bedarf der vorherigen Genehmigung. In diesem Angebot enthaltene Angaben, Abmessungen und Preise beruhen auf Informationen der Auftraggeber (Eigentümer). Abweichungen sind möglich. Eine Haftung unsererseits ist ausgeschlossen. Zwischenzeitliche Vermietung/Verkauf vorbehalten.


Bürogemeinschaft Johannes & Partner - Loschwitzer Straße 21 - 01309 Dresden - Tel.: 0351 31 44 17 0