Objekt drucken Seite ausdrucken




Ihr Ansprechpartner: Herr Johannes Telefon: 0351 / 31 44 17 0 oder 0174 / 304 5000
 Eigentumswohnung: 01099 Dresden - Loschwitz , Brockhausstraße
Objekt-ID: 6535

Beschreibung:

Individuelle Wohnung in absoluter Bestlage an der Elbe mit folgender Ausstattung:

* Traumlage an der Elbe, wie im Urlaub
* Wohnung ist definitiv hochwassersicher
* saniertes Einzelkulturdenkmal
* Lift im Haus
* großer Einzelstellplatz in der Tiefgarage
* kleiner Balkon mit herrlichem Blick
* große Wohnküche mit Esszimmer & Balkon
* großer Garten in herrlicher Lage zur Nutzung
* hochwertiges Parkett in allen Wohn-und Schlafräumen
* großes und sehr hochwertiges Bad
* Gäste-WC
* Abstellraum in der Wohnung
* Abstellraum im Keller
* Netzwerkverkablung in der Wohnung

Der Gesamtkaufpreis Wohnung plus Tiefgaragenstellplatz beträgt 610.000,-€.

Die Fläche in der oberen Ebene ist keine volle Wohnfläche, mehr dazu erklären wir gerne auf Anfrage.

Weitere Informationen gerne auf Anfrage.

 

Energieausweis: Das Objekt unterliegt nicht den GEG-Anforderungen



Hausansicht


Hausansicht


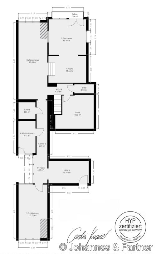
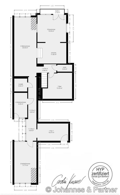
Grundriss 2.Obergeschoss


Grundriss Dachgeschoss


Flächenberechnung


Garten zur Nutzung


Lift im Haus


Eingangsbereich


schöne Räume und hochwertige Ausstattung


Zimmer


kleines Arbeitszimmer


Zimmer


Esszimmer


Balkon


Blick vom Balkon nach Osten


Blick vom Balkon nach Westen


Esszimmer


Zimmer in der oberen Ebene


Zimmer in der oberen Ebene


Zimmer in der oberen Ebene


sehr schöne Sichtachsen in der Wohnung


Abstellraum in der Wohnung


Blick aus dem Wohnzimmer-Fenster


gepflegte Anlage


Hausansicht


Exposé ist nur zur Information für Interessenten. Eine Weiterverwendung durch Dritte bedarf der vorherigen Genehmigung. In diesem Angebot enthaltene Angaben, Abmessungen und Preise beruhen auf Informationen der Auftraggeber (Eigentümer). Abweichungen sind möglich. Eine Haftung unsererseits ist ausgeschlossen. Zwischenzeitliche Vermietung/Verkauf vorbehalten.


Bürogemeinschaft Johannes & Partner - Loschwitzer Straße 21 - 01309 Dresden - Tel.: 0351 31 44 17 0