Objekt drucken Seite ausdrucken




Ihr Ansprechpartner: Herr Johannes Telefon: 0351 / 31 44 17 0 oder 0174 / 304 5000
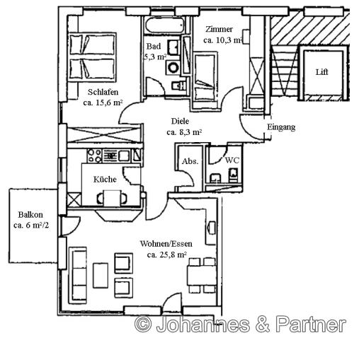
 Mietwohnung: 01307 Dresden - Johannstadt , Pfotenhauer Straße 109
Objekt-ID: 6525

Beschreibung:

Voll möblierte und sehr schöne 3-Zimmer-Wohnung in beliebter Lage Nähe Uniklinik und fußläufig zu den Elbwiesen. Moderne Möbel schaffen eine gemütliche Wohnatmosphäre.
Die Wohnung verfügt neben Wohn- und Schlafzimmermöbeln über

* Balkon
* großes Wohnzimmer mit Zugang zum Balkon
* Laminat
* Einbauküche
* Bad mit Fenster, Badewanne und Waschmaschinenanschluss
* Gäste-WC
* Abstellraum
* Tiefgaragenstellplatz
* Lift im Haus
* kein Keller
Weitere Details auf Anfrage

Energieausweis:
Baujahr:
1997
Objektzustand:
gepflegt
Heizungsart:
Zantralheizung
Befeuerungsart:
Erdgas H
Energiebedarf:
98 kWh (m²*a)
Typ:
Verbrauchsausweis
Effizienzklasse:
C






Balkon


seitliche Hausansicht


großes, helles Wohnzimmer


Küche mit Einbauküche





Essplatz im Kinderzimmer


Wohnzimmer


Wohnen


Schlafzimmer


Hausansicht


Exposé ist nur zur Information für Interessenten. Eine Weiterverwendung durch Dritte bedarf der vorherigen Genehmigung. In diesem Angebot enthaltene Angaben, Abmessungen und Preise beruhen auf Informationen der Auftraggeber (Eigentümer). Abweichungen sind möglich. Eine Haftung unsererseits ist ausgeschlossen. Zwischenzeitliche Vermietung/Verkauf vorbehalten.


Bürogemeinschaft Johannes & Partner - Loschwitzer Straße 21 - 01309 Dresden - Tel.: 0351 31 44 17 0