Objekt drucken Seite ausdrucken




Ihr Ansprechpartner: Herr Johannes Telefon: 0351 / 31 44 17 0 oder 0174 / 304 5000
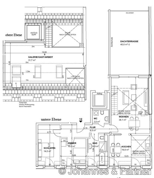
 Mietwohnung: 01097 Dresden - Neustadt , Theresienstraße 3 WE 12
Objekt-ID: 5631

Beschreibung:

Lichtdurchflutete und großzügig durchdachte 4,5- Raum Wohnung in einem modern und zeitgemäß ausgestattetem Neubau mit
* 40 m² Dachterrasse
* großzügigem Wohnbereich
* große Wohnküche mit moderner Einbauküche
* offene Galerie in der oberen Ebene
* Echtholzparkett
* elektrischen Rollläden
* Bad mit Wanne und bodengleicher Dusche
* Gäste-WC mit Waschmaschinenstellplatz
* mit großformatigen Fliesen
* Lift im Haus
* mit innovativer Haustechnik
* Netzwerkverkabelung in den Wohnungen
* barrierefreie Gebäudeerschließung
* Waschmaschinen- und Fahrradraum im Kellergeschoss
* 8 Stellplätze auf dem Grundstück
* mit familienfreundlicher Außenanlage

Dieser Neubau wird nach den neuesten baulichen Kriterien errichtet und erfüllt die derzeitigen KfW-Förderrichtlinien eines „KfW-Effizienzhaus 55“.

Angaben aus dem Energieausweis:

Baujahr: 2020                         Objektzustand: neuwertig
Heizungsart: Zentralheizung   Befeuerungsart: Kraft-Wärme-Kopplung
Energiebedarf: 52,3 kWh (m²*a) Typ: Bedarfssausweis
Energieeffiziensklasse
: B

Die Wohnungen gleichen im Wesentlichen dem Grundriss der hier abgebildeten Ansicht! Der Grundriss ist nicht maßstabsgetreu, die Raumgrößen sind beispielhaft u. können geringfügig variieren. Die Wohnung kann spiegelverkehrt sein. Die abgebildete Möblierung stellt leiglich einen Vorschlag dar und ist nicht Leistungsbestandteil.



Hausansicht


Dachterrasse


Hausansicht Illustration


Dachterrasse


große Küche mit Einbauküche


große Küche mit Einbauküche


Wohnzimmer


Schönes, helles Wohnzimmer


Zimmer


Zimmer


Zimmer


Wohnküche


Bad mit Wanne, Dusche und Fenster untere Ebene


Badezimmer mit Einbaumöbeln


Galerie


Galerie














Exposé ist nur zur Information für Interessenten. Eine Weiterverwendung durch Dritte bedarf der vorherigen Genehmigung. In diesem Angebot enthaltene Angaben, Abmessungen und Preise beruhen auf Informationen der Auftraggeber (Eigentümer). Abweichungen sind möglich. Eine Haftung unsererseits ist ausgeschlossen. Zwischenzeitliche Vermietung/Verkauf vorbehalten.


Bürogemeinschaft Johannes & Partner - Loschwitzer Straße 21 - 01309 Dresden - Tel.: 0351 31 44 17 0