Objekt drucken Seite ausdrucken




Ihr Ansprechpartner: Herr Johannes Telefon: 0351 / 31 44 17 0 oder 0174 / 304 5000
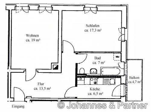
 Mietwohnung: 01159 Dresden - Löbtau , Malterstraße 54 - 9
Objekt-ID: 5121

Beschreibung:

schöne 2-Zimmer-Wohnung im sanierten Altbau in ruhiger Lage und mit guter Verkehrsanbindung mit
* Balkon an der Küche
* Laminat
* Küchenzeile (Nobilia) ohne E-GEräte kann vom Vormieter übernommen werden
* Bad mit Badewanne und Fenster
* WM-Anschluss im Bad
* kleiner Hof mit Fahrradabstellplatz und Wäschespinne
* Kellerabteil
* Hundehaltung nicht erwünscht
* Kündigungsauschluss von 2 Jahren

Angaben aus dem Energieausweis:

Baujahr: 1940/2009                       Objektzustand: gepflegt
Heizungsart: Zentralheizung          Befeuerungsart: Erdgas H
Energiebedarf: 83 kWh (m²*a)      Typ: Verbrauchsausweis
Energieeffiziensklasse
: C













Küche


großer Balkon


großes, helles Wohnzimmer


großzügiger Flur


großes, helles Schlafzimmer


Bad mit Badewanne und Fenster


Exposé ist nur zur Information für Interessenten. Eine Weiterverwendung durch Dritte bedarf der vorherigen Genehmigung. In diesem Angebot enthaltene Angaben, Abmessungen und Preise beruhen auf Informationen der Auftraggeber (Eigentümer). Abweichungen sind möglich. Eine Haftung unsererseits ist ausgeschlossen. Zwischenzeitliche Vermietung/Verkauf vorbehalten.


Bürogemeinschaft Johannes & Partner - Loschwitzer Straße 21 - 01309 Dresden - Tel.: 0351 31 44 17 0