Objekt drucken Seite ausdrucken




Ihr Ansprechpartner: Herr Johannes Telefon: 0351 / 31 44 17 0 oder 0174 / 304 5000
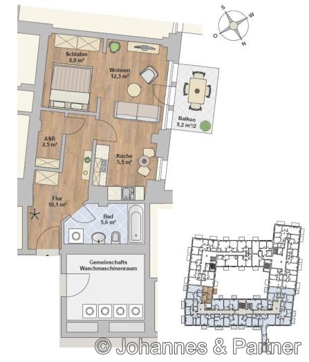
 Mietwohnung: 01277 Dresden - Striesen , Glashütter Straße 92 WE 31
Objekt-ID: 5049

Beschreibung:

Im Herzen von Striesen-Ost, einer der gefragtesten Wohngegenden von Dresden, befindet sich im denkmalgeschützten Gebäude der Historischen Tabakfabrik diese schöne 2-Raum- Wohnung mit ideal durchdachtem Grundriss, auch geeignet für Wohngemeinschaften. Die Außenanlagen sind zeitgemäß und freundlich angelegt, mit Spielplatz und Sitzgelegenheiten und fügen sich harmonisch in das Gesamtbild ein.

Diese Wohnung ist modern ausgestattet mit:
* Balkon
* Echtholzparkett und Fliesen
* Fußbodenheizung
* Lift im Haus, barrierearmer Zugang
* barrierearme Gebäudeerschließung
* moderne Bäder mit großformatigen Fliesen
* Bad mit Badewanne und WM-Stellplatz
* Abstellraum
* Fenster mit modernem Sonnenschutz
* Waschmaschinenraum mit Münzautomaten
* Kellerabteil
* Fahrradraum im Keller
* Netzwerkverkabelung
* sehr schnelles Internet (Glasfaser-FTTH-Anschluss)
* Videogegensprechanlage mit Farbdisplay
* Paketpackstation in der Gemeinschaftsanlage
* 24 Monate Kündigungsausschluss

Angaben aus dem Energieausweis:

Baujahr:1912/ 2020                    Objektzustand: Erstbezug
Befeuerungsart: Gas; Kraft-Wärme-Koppelung
Heizungsart: Fußbodenheizung   Energieeffizienzklasse: B
Energiebedarf: 72,6 kWh (m²*a) Typ: Bedarfsausweis

Die Wohnungen gleichen im Wesentlichen dem Grundriss der hier abgebildeten Ansicht! Der Grundriss ist nicht maßstabsgetreu, die Raumgrößen sind beispielhaft u. können geringfügig variieren. Die Wohnung kann spiegelverkehrt sein. Die abgebildete Möblierung stellt lediglich einen Vorschlag dar und ist nicht Leistungsbestandteil.



Hausansicht (fertige Hausansicht 1. Bauabschnitt)


Grundriss














Exposé ist nur zur Information für Interessenten. Eine Weiterverwendung durch Dritte bedarf der vorherigen Genehmigung. In diesem Angebot enthaltene Angaben, Abmessungen und Preise beruhen auf Informationen der Auftraggeber (Eigentümer). Abweichungen sind möglich. Eine Haftung unsererseits ist ausgeschlossen. Zwischenzeitliche Vermietung/Verkauf vorbehalten.


Bürogemeinschaft Johannes & Partner - Loschwitzer Straße 21 - 01309 Dresden - Tel.: 0351 31 44 17 0