Karte
Karte Dresden

Direktsuche
Objekt-ID:

Merkzettel    Merkzettel drucken
 
Adresse: 01324 Dresden - Weißer Hirsch , Lahmann WE 13
ID: 6490

Beschreibung:

In dem historischen Saal des bekannten Lahmann-Sanatoriums am Weißen Hirsch sind 14 beeindruckende und individuelle Wohneinheiten mit folgender exklusiver Ausstattung entstanden:

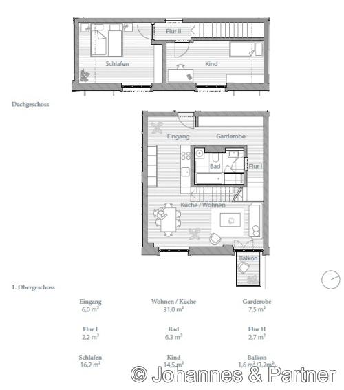
* großzügige 3-Zimmer-Maisonette-Wohnung mit großen Fenstern  und
* Balkon
* aufwendig bemalte und teilweise vergoldete Holkassettendecken im gemeinschaftlichen Treppenhaus
* Eichenparkett
* Fußbodenheizung
* modern und hell geflieste Bäder mit ebenerdigen Duschen und/oder Badewanne
* teilweise aufwendige Vertäfelungen, historische Gesimse und Stuck
* dreifach verglaste Fenster
* Lüftungs- und Wärmerückgewinnungsanlage
* Gegensprechanlage mit Video
* Fern-/Kraft-Wärmekopplung
* Duplex-Tiefgaragenstellplätze ab 100 € je nach Größe möglich
* Ladestation in der Tiefgarage am Stellplatz möglich
Das Objekt unterliegt nicht den GEG-Anforderungen.


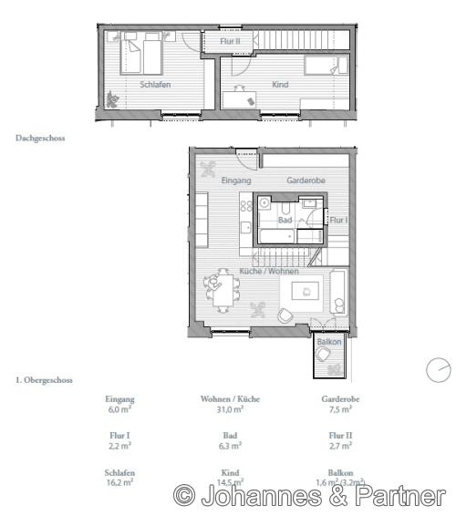
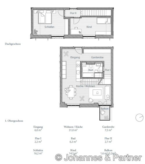
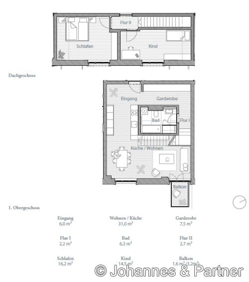
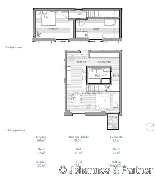
Grundriss
Grundriss
 


 


 


 


 


 



Exposé ist nur zur Information für Interessenten. Eine Weiterverwendung durch Dritte bedarf der vorherigen Genehmigung. In diesem Angebot enthaltene Angaben, Abmessungen und Preise beruhen auf Informationen der Auftraggeber (Eigentümer). Abweichungen sind möglich. Eine Haftung unsererseits ist ausgeschlossen. Zwischenzeitliche Vermietung/Verkauf vorbehalten.
Kontakt / Anfrage
Bei Fragen rufen Sie uns bitte an oder senden Sie uns eine Email. Wir werden uns schnellstmöglich bei Ihnen melden. Bitte hinterlassen Sie Ihre Telefonnummer!

Sie erreichen uns unter:
Tel.: +49 351 - 31 44 17 0 oder +49 174 - 304 5000.
Fax: +49 351 - 31 44 17 22
Email: info@dresdden.de

Ihr Name:
Ihre Email:
Ihre Tel.Nr.:
Nachricht:
 
Mit dem „Abschicken" dieses Kontaktformular stimme ich zu, dass meine Angaben aus dem Kontaktformular zur Beantwortung meiner Anfrage gemäß den Datenschutzbestimmungen von Johannes & Partner zu den dort beschriebenen Zwecken erhoben und verarbeitet werden. Ich habe die Datenschutzerklärung von Johannes & Partner zur Kenntnis genommen.
 
 
© Johannes & Partner Immobilienmakler 22 :09 Uhr | 18.02.2026