Karte
Karte Dresden

Direktsuche
Objekt-ID:

Merkzettel    Merkzettel drucken
 
Adresse: 01326 Dresden - Loschwitz , Tolstoistraße
ID: 6406

Beschreibung:

Rarität am Elbhang! Eine der letzten unsanierten denkmalgeschützten Villen in ruhiger und grüner Bestlage von Dresden-Loschwitz auf parkähnlichem Grundstück. Die Villa hat etwas über 500 m² Wohnfläche und weitere 200 m² Nutzfläche im Keller und auf dem Boden und bietet somit gute Möglichkeiten für eine Familie mit viel Platzbedarf oder für eine Kombination aus Wohnen und Arbeiten. Auch eine Aufteilung des Hauses in 2-3 Wohneinheiten ist denkbar.

Explizit hinweisen möchten wir noch auf die steuerlichen Abschreibungsmöglichkeiten der gesamten notwendigen Sanierung, nach Abstimmung mit der Denkmal-schutzbehörde kann der Erwerber fast die gesamten Sanierungskosten steuerlich abschreiben, diesbezüglich bitten wir jedoch um Konsultation eines Steuerberaters.

Wir möchten nochmals darauf hinweisen, dass das Haus zwar bis vor etwa einem Jahr bewohnt war, jedoch nun umfangreich saniert werden muss.

Durch den Denkmalschutz unterliegt das Haus nicht den GEG-Anforderungen, d.h. es ist kein Energieausweis notwendig.


Hausansicht
Hausansicht
 

Teil des sehr schönen, großen und parkähnlichen Gartens
Teil des sehr schönen, großen und parkähnlichen Gartens

Nebengebäude mit Garage auf dem parkähnlichen Grundstück
Nebengebäude mit Garage auf dem parkähnlichen Grundstück
 

Lage des Hauses am Elbhang
Lage des Hauses am Elbhang

Lage des Hauses am Elbhang
Lage des Hauses am Elbhang
 

Hausansicht
Hausansicht

Hausansicht
Hausansicht
 

Ansicht 1
Ansicht 1

Ansicht 2
Ansicht 2
 

Ansicht 3
Ansicht 3

Ansicht 4
Ansicht 4
 

Grundriss Kellergeschoss
Grundriss Kellergeschoss

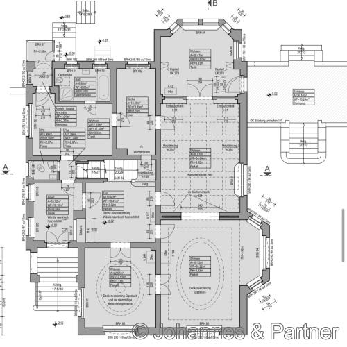
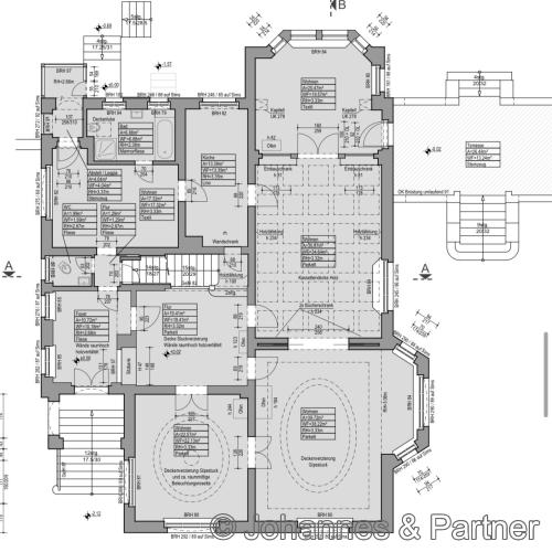
Grundriss Erdgeschoss
Grundriss Erdgeschoss
 

Grundriss Obergeschoss
Grundriss Obergeschoss

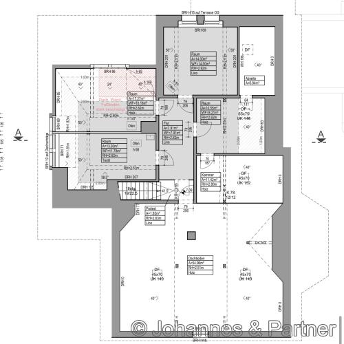
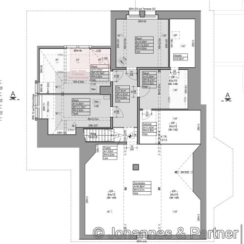
Grundriss Dachgeschoss
Grundriss Dachgeschoss
 

Hausansicht aus dem Garten
Hausansicht aus dem Garten

seitliche Terrasse am Haus im Grünen
seitliche Terrasse am Haus im Grünen
 

Lage des Hauses am Elbhang
Lage des Hauses am Elbhang

Hausansicht
Hausansicht
 


 


 


 


Exposé ist nur zur Information für Interessenten. Eine Weiterverwendung durch Dritte bedarf der vorherigen Genehmigung. In diesem Angebot enthaltene Angaben, Abmessungen und Preise beruhen auf Informationen der Auftraggeber (Eigentümer). Abweichungen sind möglich. Eine Haftung unsererseits ist ausgeschlossen. Zwischenzeitliche Vermietung/Verkauf vorbehalten.
Kontakt / Anfrage
Bei Fragen rufen Sie uns bitte an oder senden Sie uns eine Email. Wir werden uns schnellstmöglich bei Ihnen melden. Bitte hinterlassen Sie Ihre Telefonnummer!

Sie erreichen uns unter:
Tel.: +49 351 - 31 44 17 0 oder +49 174 - 304 5000.
Fax: +49 351 - 31 44 17 22
Email: info@dresdden.de

Ihr Name:
Ihre Email:
Ihre Tel.Nr.:
Nachricht:
 
Mit dem „Abschicken" dieses Kontaktformular stimme ich zu, dass meine Angaben aus dem Kontaktformular zur Beantwortung meiner Anfrage gemäß den Datenschutzbestimmungen von Johannes & Partner zu den dort beschriebenen Zwecken erhoben und verarbeitet werden. Ich habe die Datenschutzerklärung von Johannes & Partner zur Kenntnis genommen.
 
 
© Johannes & Partner Immobilienmakler 14 :58 Uhr | 08.11.2025