Karte
Karte Dresden

Direktsuche
Objekt-ID:

Merkzettel    Merkzettel drucken
 
Adresse: 01097 Dresden - Neustadt , Theresienstraße 3 WE 12
ID: 5631

Beschreibung:

Lichtdurchflutete und großzügig durchdachte 4,5- Raum Wohnung in einem modern und zeitgemäß ausgestattetem Neubau mit
* 40 m² Dachterrasse
* großzügigem Wohnbereich
* große Wohnküche mit moderner Einbauküche
* offene Galerie in der oberen Ebene
* Echtholzparkett
* elektrischen Rollläden
* Bad mit Wanne und bodengleicher Dusche
* Gäste-WC mit Waschmaschinenstellplatz
* mit großformatigen Fliesen
* Lift im Haus
* mit innovativer Haustechnik
* Netzwerkverkabelung in den Wohnungen
* barrierefreie Gebäudeerschließung
* Waschmaschinen- und Fahrradraum im Kellergeschoss
* 8 Stellplätze auf dem Grundstück
* mit familienfreundlicher Außenanlage

Dieser Neubau wird nach den neuesten baulichen Kriterien errichtet und erfüllt die derzeitigen KfW-Förderrichtlinien eines „KfW-Effizienzhaus 55“.

Angaben aus dem Energieausweis:

Baujahr: 2020                         Objektzustand: neuwertig
Heizungsart: Zentralheizung   Befeuerungsart: Kraft-Wärme-Kopplung
Energiebedarf: 52,3 kWh (m²*a) Typ: Bedarfssausweis
Energieeffiziensklasse
: B

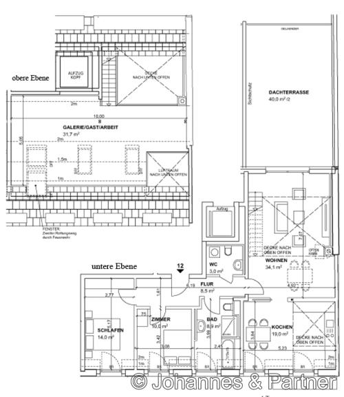
Die Wohnungen gleichen im Wesentlichen dem Grundriss der hier abgebildeten Ansicht! Der Grundriss ist nicht maßstabsgetreu, die Raumgrößen sind beispielhaft u. können geringfügig variieren. Die Wohnung kann spiegelverkehrt sein. Die abgebildete Möblierung stellt leiglich einen Vorschlag dar und ist nicht Leistungsbestandteil.

Hausansicht
Hausansicht
 

Dachterrasse
Dachterrasse

Hausansicht Illustration
Hausansicht Illustration
 

Dachterrasse
Dachterrasse

große Küche mit Einbauküche
große Küche mit Einbauküche
 

große Küche mit Einbauküche
große Küche mit Einbauküche

Wohnzimmer
Wohnzimmer
 

Schönes, helles Wohnzimmer
Schönes, helles Wohnzimmer

Zimmer
Zimmer
 

Zimmer
Zimmer

Zimmer
Zimmer
 

Wohnküche
Wohnküche

Bad mit Wanne, Dusche und Fenster untere Ebene
Bad mit Wanne, Dusche und Fenster untere Ebene
 

Badezimmer mit Einbaumöbeln
Badezimmer mit Einbaumöbeln

Galerie
Galerie
 

Galerie
Galerie

 


 



Exposé ist nur zur Information für Interessenten. Eine Weiterverwendung durch Dritte bedarf der vorherigen Genehmigung. In diesem Angebot enthaltene Angaben, Abmessungen und Preise beruhen auf Informationen der Auftraggeber (Eigentümer). Abweichungen sind möglich. Eine Haftung unsererseits ist ausgeschlossen. Zwischenzeitliche Vermietung/Verkauf vorbehalten.
Kontakt / Anfrage
Bei Fragen rufen Sie uns bitte an oder senden Sie uns eine Email. Wir werden uns schnellstmöglich bei Ihnen melden. Bitte hinterlassen Sie Ihre Telefonnummer!

Sie erreichen uns unter:
Tel.: +49 351 - 31 44 17 0 oder +49 174 - 304 5000.
Fax: +49 351 - 31 44 17 22
Email: info@dresdden.de

Ihr Name:
Ihre Email:
Ihre Tel.Nr.:
Nachricht:
 
Mit dem „Abschicken" dieses Kontaktformular stimme ich zu, dass meine Angaben aus dem Kontaktformular zur Beantwortung meiner Anfrage gemäß den Datenschutzbestimmungen von Johannes & Partner zu den dort beschriebenen Zwecken erhoben und verarbeitet werden. Ich habe die Datenschutzerklärung von Johannes & Partner zur Kenntnis genommen.
 
 
© Johannes & Partner Immobilienmakler 06 :12 Uhr | 21.10.2025