Karte
Karte Dresden

Direktsuche
Objekt-ID:

Merkzettel    Merkzettel drucken
 
Adresse: 01187 Dresden - Plauen , Hohe Straße 93 WE 07
ID: 2329

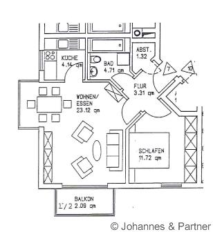
Beschreibung:

helle und sehr schöne 2-Zimmer-Wohnung in ruhiger Lage mit
* Balkon,
* Erker am Wohnzimmer
* Parkett neu versiegelt
* teilweise 3-Fachverglasung neu
* Bad mit Badewanne innenliegend,
* Küche mit Fenster;
* Abstellraum
* Keller und
* Tiefgarage

Angaben aus dem Energieausweis:

Baujahr: 1997                         Objektzustand: gepflegt
Heizungsart: Zentralheizung     Befeuerungsart:Erdgas
Energiebedarf: 131 kWh (m²*a) Typ: Verbrauchsausweis
Energieeffizienzklasse:
E

 

 


 


 


Exposé ist nur zur Information für Interessenten. Eine Weiterverwendung durch Dritte bedarf der vorherigen Genehmigung. In diesem Angebot enthaltene Angaben, Abmessungen und Preise beruhen auf Informationen der Auftraggeber (Eigentümer). Abweichungen sind möglich. Eine Haftung unsererseits ist ausgeschlossen. Zwischenzeitliche Vermietung/Verkauf vorbehalten.
Kontakt / Anfrage
Bei Fragen rufen Sie uns bitte an oder senden Sie uns eine Email. Wir werden uns schnellstmöglich bei Ihnen melden. Bitte hinterlassen Sie Ihre Telefonnummer!

Sie erreichen uns unter:
Tel.: +49 351 - 31 44 17 0 oder +49 174 - 304 5000.
Fax: +49 351 - 31 44 17 22
Email: info@dresdden.de

Ihr Name:
Ihre Email:
Ihre Tel.Nr.:
Nachricht:
 
Mit dem „Abschicken" dieses Kontaktformular stimme ich zu, dass meine Angaben aus dem Kontaktformular zur Beantwortung meiner Anfrage gemäß den Datenschutzbestimmungen von Johannes & Partner zu den dort beschriebenen Zwecken erhoben und verarbeitet werden. Ich habe die Datenschutzerklärung von Johannes & Partner zur Kenntnis genommen.
 
 
© Johannes & Partner Immobilienmakler 23 :51 Uhr | 27.11.2025